 |
Simwonsa Temple Universal Light Hall |
| |
 |
Simwonsa Temple Universal Light Hall |
| |
|
Simwonsa Temple Universal Light Hall
NORTH KOREA, North Pyongan, Bakcheon
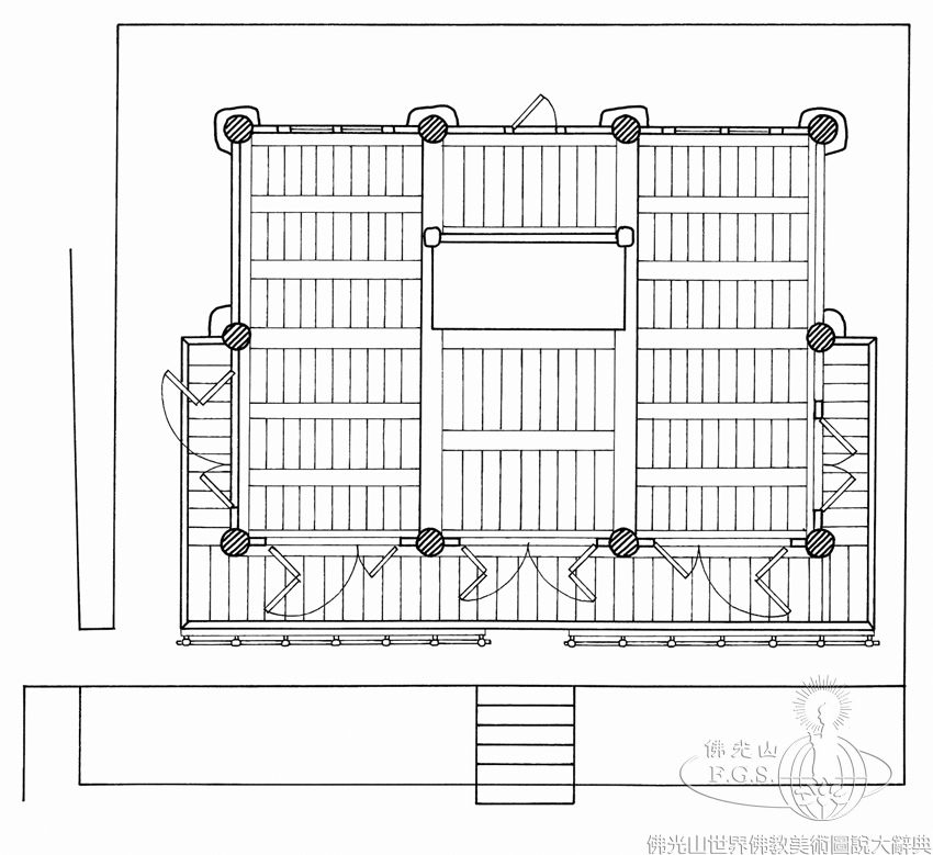
The Universal Light Hall is located in Simwonsa Temple, which means Temple of Deep Origin. The temple was founded in the 9th century and was rebuilt in 1368 during the Goryeo dynasty. The hall is listed as National Treasure No. 54.
The three-by-two bay Universal Light Hall is built on a stone platform. It has a single-eave hip-and-gable roof with extended eaves. The tapered columns and beams are thick, giving the impression of a strong and stable structure. The colors and designs of the paintings and decorations on the beams and columns complement each other. The lattice windows and the multi-tier bracket sets are carved with flowers, dragons, and human figures, which are mainly green and sprinkled lavishly with gold dust. This hall is an example of the highly developed architectural skills of the late Goryeo dynasty (918–1392). |